
ISK 高压铁芯式电抗器
概述:ISK铁心式调谐电抗器,绕组材料为铜线,接线端子为铝或铜材质。电抗器为环氧树脂浇注而成。具有空载损耗低,机械强度高,绝缘强度好的特点,同时因为其噪音低,振动小,所以对周围环境干扰非常小。
功能描述
ISK铁芯式调谐电抗器,绕线材料为铜线或铝线,接线端子为铝或铜材质。电抗器为环氧树脂浇注而成。具有空载损耗低,机械强度高,绝缘强度好的特点,同时因为其噪音低振动小,所以对周围环境干扰非常小。
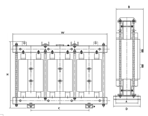
规格型号

技术参数
额定容量:100~5000kvar(其它容量可定制)
电抗系数:6%,7%,14%(其它抗率可定制)
线性度:在
状态下,电感值衰减不超过额定值值的4%
电感误差:±3%(可根据需要定制)
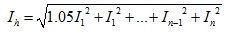
额定电流:除特殊定制外,额定电流计算基波电流值和谐波电流值,其中
(考虑5%的过电压);
制造标准:IEC 60076 IEC 60289
